泽皓玻纤瓦沥青胶点胶
泽皓玻纤瓦自粘胶在太阳光下能被激活,使瓦片之间产生粘结。但是在温度较低时,粘结时间比温暖的季节更长一些。粘结时间也取决于地理位置,屋面坡度,房屋的朝向和施工季节。对于木质结构,在春秋冬季,使用泽皓玻纤瓦非全背胶产品时,建议采用点胶方式安装。对于钢筋水泥屋面,无论季节如何,建议在使用泽皓全背胶产品时,采取点胶的方式安装玻纤瓦,目的是加强瓦片的粘结性。点胶位置:距离瓦片25mm到50mm处,不能靠近瓦片的左右两侧和底边,防止挤压瓦片时,沥青胶被挤压在瓦片外。
注:温度较低时,沥青胶应存储在温室里,在使用前取出后,立即使用。

泽皓玻纤瓦专用钢钉
1:规格
泽皓玻纤瓦配套的专用专用镀锌钢钉,钉身直径为2.67mm,钉帽直径为9.0mm,长度为钉子钉入屋面板的深度不得少于19mm.如遇特节点固定需求,可选用较长的钉子。

2:固定钉子的正确方法
正确固定钉子的方式对于保证屋盖的质量至关重要。
要求:
(1):选用泽皓玻纤瓦专用钢钉。
(2):在木板基层上,每片瓦片不得少于6个固定钉,在混凝土、水泥砂浆基层上每片瓦片不得少于6个固定钉,初始层使用4个固定钉。
(3):固定钉子前,瓦要排列整齐,以免钉子外露。
(4):钉帽不能钉入或者钉在瓦的自粘胶上。
(5):钉子要从先前铺设的末端开始钉入,按照顺序进行。为了防止变形,不要再固定了两个钉子后移动瓦。
(6):钉子钉入方向应与屋面垂直,且钉帽与瓦齐平。
(7):要防止钉子划破瓦的表面。
(8):钉错的钉子要立即修正。如果钉子钉弯,则应拔除,用泽皓沥青胶修补钉孔。并在钉孔附近位置钉入另一个钉子。如有必要,换掉整张瓦。

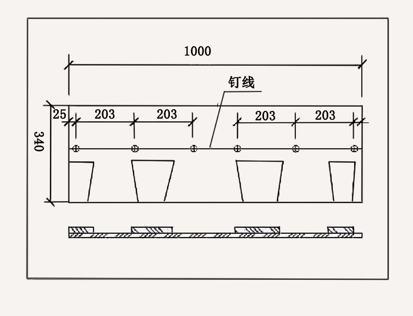
3. 钉子固定的位置
(1):在单层瓦上固定钉子每张瓦要钉6个钉子,初始层要钉4个钉子。钉子的位置位于装饰缝上方16mm处,距离两边端25mm处,且距每个装饰缝中心左右各25mm处。
(2):在双层瓦上固定钉子(如图3.2.2-3)对于双层瓦,钉子要固定在专门标记的钉线上。钉子距离边端应≥25mm的地方,边端钉子与中间钉子间距离各203mm和406mm的地方,沿着钉线各钉一个钉子,在另外一端重复同样的操作。

泽皓官网:www.zehaojc.com












